You are using an outdated browser.
Please upgrade your browser to improve your experience.

Laboratoires des sciences animales - © Cro&Co
Laboratoires des sciences animales - © Cro&Co
Laboratoires des sciences animales - © Cro&Co
Laboratoires des sciences animales - © Cro&Co
Laboratoires des sciences animales - © Cro&Co
Laboratoires des sciences animales - © Cro&Co
Laboratoires des sciences animales - © Cro&Co

Laboratoires des sciences animales

Concours pour un bâtiment multifonctionnel de laboratoires des sciences animales, Bonn (DE)

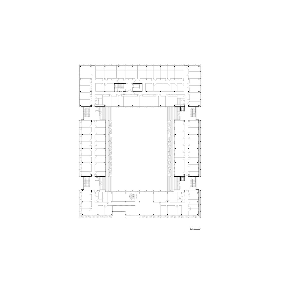
C’est au cœur du Campus universitaire de Bonn-Poppelsdorf que s’inscrit le nouveau bâtiment qui regroupera deux instituts distincts et leurs départements universitaires avec l’ambition de devenir un centre de recherches et d’enseignement.

Le bâtiment a été pensé pour offrir des conditions de vie optimales pour ses utilisateurs : un environnement stimulant, adapté au travail de recherche qui demande concentration et précision, et des espaces de rencontre volontairement répartis à l’intérieur et à l’extérieur pour provoquer la sérendipité et la convivialité, les communications informelles entre les chercheurs et les étudiants. Nous mettons l’humain et son bien-être au cœur du projet

L’enveloppe extérieure est repoussée aux limites de la constructibilité sur les quatre côtés de la parcelle afin d’offrir au cœur de l’îlot un grand jardin généreux, à la fois lieu de rencontre et réservoir de biodiversité.

La résille, telle un exosquelette en acier, constitue la peau extérieure, support de balcons, de garde-corps, de lamelles brise soleil en façade, de panneaux photovoltaïques et pergolas en toiture. Elle participe à la régulation des apports thermiques et de lumière et uniformise par sa régularité les façades différenciées entre laboratoires et bureaux conférant à la nouvelle institution une identité forte.

Programme : Bâtiment multifonctionnel de laboratoires des sciences animales avec auditorium, bibliothèque, local vélos, terrasse et jardin intérieur | Surface : 7 000 m² + 2 000 m² d’espaces végétalisés | Adresse : Bonn, Allemagne |Concours : 2022.

Maître d’ouvrage : Université de Bonn, Poppelsdorf Campus | Architecte mandataire : CroMe Studio | Maîtrise d’œuvre : Urbicus (Paysage), Ingenieurbüro Liebert (Fluides), Bollinger+Grohmann (Structure) | Perspectives : ©Lemons Bucket | Maquette : Archimade.