You are using an outdated browser.
Please upgrade your browser to improve your experience.

Acantha - © Cro&Co
Acantha - © Cro&Co
Acantha - © Cro&Co
Acantha - © Cro&Co
Acantha - © Cro&Co
Acantha - © Cro&Co
Acantha - © Cro&Co

Acantha

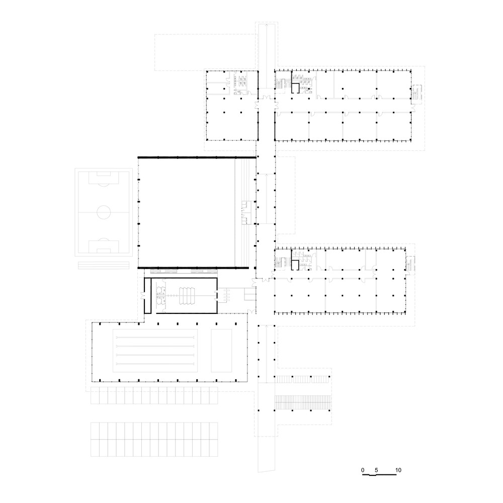
Concours pour un complexe scolaire et sportif, Echandens (CH)

Le site est caractérisé par l’entremêlement des trames de tissu pavillonnaire et de champs viticoles. Le nouveau complexe scolaire et sportif d’Echandens s’inspire de ce genius loci pour générer l’organisation des volumes bâtis et des espaces extérieurs.

Le projet est constitué de bandes Est Ouest qui alternent plein et vide, traversées par un axe de liaison Nord Sud, faisant référence aux vignobles sur les coteaux le long du Lac Léman.

Les fonctions s’organisent le long de l’épine centrale Nord-Sud commune au complexe scolaire et au complexe sportif. Elle connecte de part et d’autre comme des plugs en alternance des bâtiments et des espaces extérieurs qui répondent aux séquences de plein et de vide des pavillons voisins. C’est une circulation en pente douce qui suit le dénivelé du terrain, d’abord couverte en partie Sud pour connecter la piscine et le gymnase, puis fermée en partie Nord pour connecter l’école et ses annexes parascolaires (crèche, réfectoire…). 

Les espaces extérieurs s’intercalent entre les bâtiments formant des lieux plus intimes, conçus pour le bien-être des enfants et des adolescents.
Un bâtiment compact, des toitures végétalisées et recouvertes de panneaux photovoltaïques, des matériaux biosourcés tels que le bois pour les façades et la terre cuite pour les sols, participent à créer un environnement durable.

Programme : Construction d’un complexe scolaire et sportif comprenant des salles de classe, l’administration, une salle de gymnastique, une salle de rythmique, une piscine couverte, des équipements parascolaires (garderie, crèche, réfectoire, ludothèque, médiathèque), des stationnements voitures/​bus/​vélos, et des espaces extérieurs (jardins, cours de récréation, terrain multisport, préau) | Surface : 5 900 m² | Adresse :Echandens, Suisse | Concours : 2022

Maître d’ouvrage : Commune d’Echandens, Suisse | Architecte : CroMe Studio | Images : ©CroMe Studio.